مع التوسع العمراني شمالا وجنوبا في العاصمة عمان أصبحت منطقة شمال عمان حيث يقع هذا المشروع، أكثر حيوية. ويقع هذا المجمع التجاري بالتحديد على المدخل الرئيسي لمنطقة أبو نصير، وهذا ما أضاف عامل التميز للموقع بالرغم من مساحة الأرض الصغيرة نسبيا. وكذلك يقع على الشارع التجاري الرئيسي، ويحيطه من الشمال الأحياء السكنية، أما من الجنوب حديقة الجبيهة، ومن الشرق المباني التجارية حيث يقع السوق على جانبي الشارع الرئيسي.
ⓒ Loay Al Tal
في البداية تم دراسة السياق المعماري للأبنية التجارية القائمة، آخذين بعين الاعتبار أن أغلب الأبنية في الشارع الرئيسي مكتملة البناء، وتم تحديد التوجه المعماري الذي سيتم اعتماده أثناء مرحلة التصميم بوجود رغبة كبيرة في احترام البيئة المحيطة. وبعد الدراسة الحثيثة للبيئة المحيطة تم ملاحظة اعتماد الحجر كمادة أساسية، إلا وأنه في نفس الوقت لم يلاحظ وجود أي نهج معماري واضح كان من الممكن تبنيه، وهنا كانت نقطة البداية بالتفكير التصميمي الأولي، هل سيأخذ المشروع طابع العمارة المعاصرة، وذلك لإتاحة المجال لتقديم ماهو جديد بغض النظر عن النسيج العمراني المحيط، أم الالتزام بما هو قائم من نمط معماري رغبة باحترام البيئة المحيطة؟ وهنا جاءت فكرة الدمج بين هذين التوجهين، وتم الاتجاه الى التصميم بسياق مدروس و مفصل لتقديم هذا المجمع التجاري.
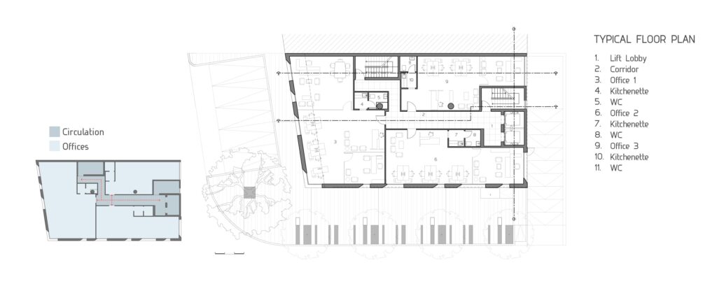
ⓒ Loay Al Talكخطوة أولى في عملية التصميم المعماري، تم البدء بدراسة تصنيف الموقع والأنظمة والأحكام للمباني الواقعة على الشارع الرئيسي، حيث يطلب تصميم الطابق الأرضي والسدة كمحلات تجارية، أما الطوابق العلوية للمباني فهي تمثل مكاتب بمختلف الاستعمالات. بعد ذلك تم تحليل المباني التجارية على جانبي الشارع، ووجد أن السائد هو تغطية المبنى كاملا بمادة الحجر عدا طابقي الأرضي والسدة و التي يتم تغطيتها بالألكابوند من قبل مستأجري المحلات التجارية، بالإضافة إلى نوافذ عرض واسعة مغطاة جزئيًا باللافتات والإعلانات. ونتيجة ذلك التحليل، ظهرت في تصميم المشروع حين تم عكس هذا التنوع في استخدام مواد الإكساء النهائية في لغتين مختلفتين حسب الوظيفة، حيث تم اختيار اللغة الأولى المستعملة في المساحات المكتبية في الطوابق العليا على أنها كتلة حجرية مرتفعة بارزة مترين، مع تشكيل فتحات النوافذ بشكل متنوع يكسر جمود هذه الكتلة، والثانية هي المستعملة في المحلات التجارية كنوافذ عرض واسعة ومستمرة.
والجدير بالذكر أنه تم التعامل مع المظهر الخارجي لكتلة المكاتب، ككتلة حجرية مرتفعة مع التلاعب بالفتحات، حيث تم تصميم ثلاث وحدات بأحجام مختلفة ضمن متوسط حجم النافذة السائد في الموقع، أي وكأنها محصلة حسابية لمجموع الفتحات الموجودة في المباني المحيطة. وكان هذا التنويع الحاصل في الفتحات على كلا المستويين: الأفقي و العامودي، مراعيا للعناصر الإنشائية. كل ذلك أدى إلى تصميم نوافذ بنمط توزيع عشوائي وتشكل توليفة مجازية لمجموعة كبيرة ومتنوعة من فتحات المباني المحيطة بالموقع ولكن داخل نفس السياق الحجري. هذا التنوع في أحجام فتحات النوافذ أعطى تجربة مختلفة ومتنوعة لمستخدم هذا الفراغ المعماري من الداخل، حيث أن الإنارة وحجم المناظر الخارجية تختلف باختلاف الفتحة وتعطي تجربة مثيرة وجديد في كل نقطة من الداخل. بالإضافة إلى كل ذلك، تم التلاعب بميلان جوانب النوافذ حيث تم إمالة أحد الجوانب للخارج وذلك رغبة بزيادة مدى الرؤية للمحيط الخارجي، وتوجيه الرؤية إلى الحديقة والشارع التجاري بعيدا عن العمارات السكنية الموجودة على الشارع الجانبي. كذلك تم تطبيق نفس المعالجة على العتبات العلوية للنوافذ وذلك للسماح بدخول المزيد من الضوء إلى المساحات المكتبية، مما يعطي قيمة جمالية وتوفير بيئة عمل مناسبة و مريحة للمستعملين.
ⓒ Loay Al Tal
أما على مستوى الأرضي والسدة فقد تم تحرير الواجهات الزجاجية من خلال إرجاع العناصر الإنشائية الى داخل جسم المبنى و تصميمها ضمن نهج العمارة المكملة للجزء العلوي، حيث تم مراعاة تصميم مدخل المجمع و المحلات التجارية اخذين بعين الاعتبار أهمية توفير المرونة في التقسيم الداخلي وفقًا لحاجة المستأجرين.
لا يمكن أن تنتهي الفكرة التصميمة لأي تصميم هادف، دون الاعتراف بأهمية و دور الاستدامة، سواء بالأنظمة التي تم توفيرها وتركيبها من البداية، أو على الأقل تأسيسها لتشغيلها مستقبلا. ومن ضمن تطبيقات أنظمة الاستدامة في هذا المشروع نظام الحصاد المائي، حيث أن له دور في إدامة الحديقة التي وفرناها للمحيط الخارجي، بالإضافة الى نظام فصل المياه العادمة عن المياه الرمادية، وأخيرا تفاصيل الجدران والنوافذ الزجاجية المزدوجة لفتحات المكاتب بحيث تعطي عزل حراري فعال.
وفي النهاية، كان التصميم المعماري لهذا المشروع يهدف لتقديم طرح في الهوية المعمارية من خلال تقديم منتج معماري منسجم ومنتمي ويحترم السياق العمراني مع تعزيز الهوية المعمارية، ليس فقط على مستوى المنطقة بل على مستوى المدينة بأكملها. حيث أن مدينة عمان بالرغم من أنها تاريخيا قد مر عليها حضارات مختلفة، مثل الرومانية والأموية وغيرها، إلا أن عمان الحديثة تفتقر الى وجود طابع معماري أو تراثي يفرض أو يساعد المصمم على الاشتقاق والتطوير، فكان هذا التحدي هو الأبرز خلال عملية التصميم منذ بدءها وحتى نهايتها بإنتاج مشروع معماري على مستوى انتمائي وفي نفس الوقت بمستوى عالي من الإبداع، يوفر لمستعمليه الراحة في استعمال المحلات التجارية ومكاتب العمل دون الحاجة الى الذهاب الى مناطق أبعد.
وفي الخلاصة، كان الهدف الاساسي توفير فراغ حضري عام يخدم أهل المنطقة والزوار، وتعويض النقص الموجود بالشارع من خلال توفير نهج معماري محافظ و معاصر في آن واحد، و توفير مساحات خضراء رغم محدوديتها، وكل ذلك مجتمعا أدى إلى تفاعل الناس مع المشروع بشكل مباشر وحيوي.
ⓒ Loay Al Tal
ⓒ Loay Al Tal
“نص شرح المشروع مقدم من المصمم.”

































































